House of Music, Innsbruck (AT)
New building

Client: Innsbrucker Immobilien GmbH & Co KG
Location: A-6020 Innsbruck
Architecture: ARGE Strolz – Dietrich Untertrifaller
Competition: 2014, 1. prize (Erich Strolz)
Construction: 2015 – 2018
Area: 7,900 m²
Programme: Great Hall for 510 persons, Small Hall for 100 persons, administration and rehearsal rooms, library, archive, restaurants / Intimate Theater: auditorium for 220 people, stage tower, black box, cloakrooms, workshops / University, Mozarteum, State Conservatory: Ensemble, office, class and seminar rooms, event hall for 120 people, library

Fotos: Roland Halbe

Team
Elke Delvoye, Cristiana Fumagalli, Carlo Heller, Johanna Kolb, Andreas Lehner (Project management), Danijela Müller-Stojanovic, Peter Nussbaumer, Roman Österle, Marcus Prinz, Christina Schlüter, Thomas Spiegel, Julian Straub, Lena Zimmermann

Text: Gerlinde Jüttner

Planungsbeteiligte
Statics: Toms, Vienna
Building services: Ortner, Innsbruck + Mikfey, Vienna
Electrics: Brugger, Innsbruck
Building physics: Spektrum, Dornbirn
Acoustics: Müller-BBM, Planegg
Stage: Kottke, Bayreuth
Passive house planning, dynamic building simulation: Herz & Lang, Schongau
Master builder: ARGE Strabag/Bodner
Ceramic cladding facade: NBK Keramik, Emmerich am Rhein 
Site management: IIG, Innsbruck + Malojer, Innsbruck

Awards

  • EU Mies Award, Shortlist

10 institutions under one roof

Located in one of Innsbruck's most prominent squares, the House of Music serves as a centre for open cultural exchange across all age groups and genres. The unifying theme is music. The complex spatial programme accommodates several music institutions, concert halls, numerous ancillary rooms, administration, catering, a national music library and outdoor terraces with views of Innsbruck and the Alps. The new building provides the city with a sustainable centre for music, theatre and all kinds of cultural events and also positions Innsbruck internationally as a "city of music".

The austere cube is vividly structured by atriums and incised loggias, terraces and recesses and blends in sensitively and yet excitingly with its historical surroundings. The surrounding historic buildings and three protected trees with the Leopold Fountain on the forecourt are reflected in the glass surfaces.

Verknüpft mit dem Stadtraum

The boundaries between inside and outside are blurred by the transparent plinth zone, the foyer orientated towards the square and the open stage area of the Great Hall on the upper floor. These attractive views link the building with the public space and encourage communication between visitors and users.

In front of the offices are open, rotating louvres that also serve as sun protection. A café with a terrace enlivens the street space.

We developed the acoustic concept together with Müller-BBM Munich. The result is outstanding acoustics, based on a solid box-in-box construction for the concert halls. For this, a second room was inserted into the hall as a steel structure. Like the ceiling, the facing shells made of sand-lime brick were clad with wooden elements whose structure ensures an optimal listening experience. In the practice rooms, the partition walls run at an angle to avoid flutter echoes.

The Great Hall

With its flexible seating and height-adjustable stage, the Great Hall can be used not only for concerts, but also for events of all kinds - like a living room in the heart of the city.

Keeping an eye on costs

The almost square floor plan allows for a simple, low-cost construction method. Reinforced concrete columns and ceilings form the main supporting structure. The entire height of the vertical access tower is visible from the inside and also serves to brace the building.

The monumental Atrium

The three-storey atrium invites social interaction with monumental staircases and spacious platforms. The light-flooded panoramic staircase connects foyers and performance venues over three levels.

High-contrast design

The façade is clad with dark, vertically structured ceramic elements, interrupted by the glass surfaces of the three-storey, transparent foyer and the Great Hall. In front of the halls, the façade is closed, while in front of the offices there are open, rotating louvres that also serve as sun protection. The effect results in a lively surface, supported by the play of colours of the glaze, which changes from light to dark depending on the weather.

Inside, the interplay of transparent and closed surfaces and light-dark contrasts continues - velvety black walls in the Kammerspiele, light, warm wood panelling in the concert halls.

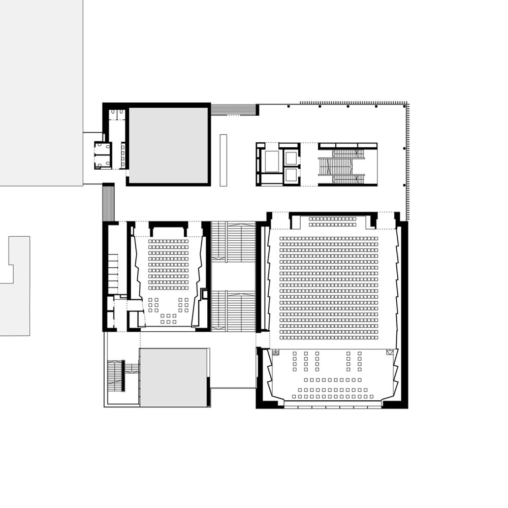
The spatial programme with 386 rooms

The multifunctional complex, which also serves as a work and research centre, houses the Kammerspiele (a smaller and intimate theatre), two concert halls, the Provincial Conservatory, the Institute of Musicology and the Mozarteum. There are also rooms for the Tyrolean Symphony Orchestra, three provincial music societies, the Early Music Festival and catering facilities.

The extensive room programme with 386 rooms has been coherently organised. On the lower floors are the public concert halls and theatres with the associated foyers. The library, administration, seminar and rehearsal rooms are stacked above this on the upper floors. The two publicly accessible roof terraces offer a magnificent view of the city.

The House of Music is impressive in terms of its energy efficiency (passive house) and sustainable energy supply. The climate goals "Energy Plan Innsbruck 2050 and Tyrol 2050 Energy Autonomous" have been realised here.

The Small Hall
The Kammerspiele
Floor plan L-1
Floor plan L0
Floor plan L5
Section

Festspielhaus Bregenz (AT)
New building, Building in existing structures, Refurbishment

further

Music & Congress Centre, Strasbourg (FR)
New building, Building in existing structures, Refurbishment

further

Stadthalle F, Vienna (AT)
New building, Building in existing structures, Listed building

further